Unterstützen SIE UNSEREN NEUBAU!
Aktueller Spendenstand
Neuigkeiten
Unsere Einweihung war ein tolles Fest mit vielen Gästen. Wir danken für euren Besuch und unseren Mitgliedern für die Unterstützung! Hier könnt ihr die Entstehung des Neubaus im Salbaum CNC Sportpark im Zeitraffer mitverfolgen. Andrea Dorr und Wenzel Kräußl waren fast täglich mit der Kamera dabei und haben ein einzigartiges visuelles Zeitdokument geschaffen. Sie haben es geschafft, 18 Monate Bauzeit in 10 Minuten zu packen. Film ab!
Wir feiern Einweihung!
Der katholische Frauenbund überreicht im Rahmen seines Sommerfestes am 16. Juli 2025 eine Spende für unseren Neubau in Höhe von 1.000 Euro. Wir sagen ein herzliches Vergelt´s Gott.
In großen Schritten Richtung Fertigstellung: 12 Monate Bauzeit!
Bilder: Tobias Tschapka
Baustellenführung „Haus der Bewegung“
HILPOLTSTEIN (tis) – Kurz vor der ordentlichen Mitgliederversammlung des TV Hilpoltstein konnten sich am Donnerstagabend die Vereinsmitglieder selbst ein Bild vom aktuellen Stand der Bauarbeiten am neuen „Haus der Bewegung“ machen. Bei einer Führung in drei Gruppen war der Andrang groß, das Interesse ebenso. Kein Wunder: Die neue Sportstätte, die direkt auf dem Gelände der früheren Tennishütte entsteht, nimmt zunehmend Gestalt an – und macht Eindruck.
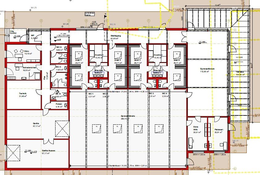
Schon von außen wirkt das Gebäude hell und einladend. Großflächige Holzelemente prägen das Erscheinungsbild, und auch im Inneren dominiert naturbelassenes Holz, das Wärme und Freundlichkeit ausstrahlt. Zwar ist der Bau noch weitgehend eine Baustelle, doch lässt sich die spätere Nutzung schon deutlich erkennen. Die zukünftige Turnhalle, übrigens ausdrücklich nicht als Ballsporthalle konzipiert, wird 300 Quadratmeter umfassen. An einer Längsseite ist eine großzügige Spiegelzeile vorgesehen, die etwa zwei Drittel der Wandfläche einnimmt – ideal für Gymnastik, Tanz oder Bewegungstraining. Ein grauer Linoleumboden soll noch verlegt werden. Um das Trocknen des frisch gegossenen Estrichs zu unterstützen, wurde das Gebäude aktuell auf über 40 Grad beheizt. Damit der Untergrund keinen Schaden nimmt, hängt ein großer Warmwassertank derzeit provisorisch in der Luft.
Auch energetisch soll das „Haus der Bewegung“ auf dem neuesten Stand gebracht werden: Der Anschluss an das städtische Nahwärmenetz ist ebenso vorgesehen wie eine moderne Lüftungsanlage, die bei der Führung erläutert wurde. Die gesamte Halle wird per Fußbodenheizung beheizt. Die Umkleideräume sind jeweils mit fünf Duschen ausgestattet, auch die Versorgungs- und Geräteräume sind bereits klar erkennbar.
Ein weiterer zentraler Bestandteil des Neubaus ist der 112 Quadratmeter große Multifunktionsraum, der künftig unter anderem für Yoga- oder Gesundheitskurse genutzt werden soll. Auch hier wird der graue Linoleumboden verlegt, ergänzt durch große Fensterflächen, die viel Tageslicht hereinlassen. Gelbe Vorhänge in den Vereinsfarben sollen später einen warmen Akzent setzen. Angrenzend befindet sich ein Lagerraum für Tische und Stühle, die sowohl im Innenbereich als auch auf der geplanten Terrasse zum Einsatz kommen werden. Die Terrasse selbst wird überdacht – mit einer Glaslösung, die dem Bereich Wintergartencharakter verleihen soll. Die genaue Ausführung befindet sich derzeit noch in der Feinplanung.
Direkt nach den Sommerferien soll bereits der Sportbetrieb aufgenommen werden – alle Beteiligten zeigten sich bei der Führung überzeugt, dass dieser Zeitplan eingehalten werden kann. In der kommenden Woche wird mit den Fliesenarbeiten begonnen, auch der Außenbereich soll dann in Angriff genommen werden.
Tobias Tschapka (tis)
Januar 2025: Der Innenausbau hat begonnen: Heizungsbau und Elektroinstallationen, Lüftungsbau und Trockenbau.
22.10.2024 – Es geht voran! Die Fa. O.Lux hat mit dem Holzbau begonnen.
27.09.2024 – Hoch- und Tiefbau ist so gut wie abgeschlossen. Vielen Dank an die Fa. Engelhard für die hervorragende Arbeit. In wenigen Wochen kommt der Holzbau. Wir sind gespannt.

Salbaum CNC Sportpark
so soll unser Sportgelände in Zukunft heißen. Die Partnerschaft ist besiegelt. Vielen Dank der Familie Salbaum für die tolle Partnerschaft!
23.07.2024 – Grundsteinlegung: Knapp 100 Besucher aus Handwerk, Politik, Sport und Verein konnten verfolgen, wie die Zeitkapsel von den Vereinskindern im Boden vergraben wurde.
Dank der großzügigen Spende der Hilpoltsteiner Fahrradgeschäfte Zweirad Häckl und TU-Sports (Tobias Ullmann) stehen zwei edle Fahrräder bereit, die im Rahmen der TV-Sportgala zum 145-jährigen Vereinsjubiläum am 9. November 2024 in der Stadthalle verlost werden. Dort werden zwei hochwertige Fahrräder unter allen Spenderinnen und Spendern verlost, die mindestens 100.- € gespendet haben oder noch spenden.
Die beiden Räder wurden letzte Woche an den TV Hip übergeben. Elke Stöhr und Gerhard Koller bedankten sich bei Edgar Häckl und Tobias Ullmann für die Spende sehr herzlich für die Unterstützung.
Auch die Gerätehütte musste versetzt werden.
Die Ausweichhütte für alle Tennisspieler und -spielerinnen und die kommende Saison wächst. Außerdem wird derzeit das Gelände für den Bau vorbereitet.
Pflasterarbeiten für die neue Hütte.
Matthias Riedel übergab an Elke Stöhr einen Scheck in Höhe von 1.000 Euro mit den Worten: „Der TV Hilpoltstein ist bereits seit über 50 Jahren sportliche Heimat der Ju-Jutsuka. Die dringend benötigte Erweiterung der Hallenkapazität mit dem Haus für Bewegung und Begegnung ist wichtig für den Sportbetrieb in ganz Hilpoltstein. Ein Projekt für alle, dass auch von allen tatkräftig unterstützt werden soll. Vielen Dank an alle Spenderinnen und Spender.“
Spenden statt schenken
Die Frage, was man schenken oder sich wünschen könnte, ist häufig einer der ersten Gedanken, wenn die nächste Feierlichkeit wie Geburtstag oder Familienfeier wie Hochzeit oder Taufe vor der Tür steht. Die Frage ist nicht immer einfach zu beantworten und manchmal fühlt es sich so an, als würde man sich immer das Gleiche wünschen.
Doch wussten Sie, dass Sie sich von Ihren Gästen auch Spenden statt Geschenke wünschen können? Eine gute Idee und außerdem eine gemeinnützige Alternative zu den üblichen Wünschen wie Gebrauchsgegenstände.
Ein Fest zugunsten des Hallenneubaus des TV Hilpoltstein ausrichten. Geburtstag oder Jubiläum einfach für das Gemeinwohl feiern.
Die Weihnachts-Aktion der Firma IT4Network ist inzwischen traditionell und jedes Jahr kann sich eine andere gemeinnützige Institution über Unterstützung freuen. In diesem Jahr überreichten die Geschäftsführer Thomas Pfeiffer und Michael Bergmann der Vorsitzenden des TV Hilpoltstein Elke Stöhr einen Scheck in Höhe von 1.000 Euro für den geplanten Hallenneubau in der Hilpoltsteiner Badstraße. Unter dem Motto „Spenden statt Schenken“ verzichtet das Unternehmen seit Jahren auf Kundengeschenke an Weihnachten.
Abbau unserer alten Tennishütte. Nach 40 Jahren muss sie weichen. Aber: Sie wird an anderer Stelle wieder aufgebaut! (Nov. 2023)
Wir bitten um eure Unterstützung! In der ersten Novemberwoche wird ein Spendenaufruf an alle Haushalte in Hilpoltstein und Umgebung verteilt. Jede Art der Unterstützung ist für uns hilfreich!
Herzlichen Dank der Fa. Tiefbau Gruber für die Überlassung eines Bauwagens. Die Tennishütte muss dem Neubau weichen und alles Inventar den Winter in diesem Bauwagen verbringen.
Unser Haus für Bewegung und Begegnung
Vorhaben: Bau einer Sporthalle in der Größe 20 x 15 (x 4,5 m), einem Multifunktionsraum (112 qm) mit Geräte-, Aufenthalts- und Sanitärräumen für die Hallensportler und Tennisspieler*innen.
Der TV Hilpoltstein als Breitensportverein sollte sich auch weiterhin gezielt dem Ausbau des Freizeit- und Gesundheitssport widmen, denn der Großteil unserer 3000 Mitglieder ist in dieser Sparte aktiv. Gerade in diesem Segment hat sich – zum einen aufgrund der demografischen Entwicklung, als auch im Hinblick auf das Sport- und Freizeitverhalten der Bevölkerung – in den letzten 10 Jahren vieles verändert. Unsere Stadt wächst kontinuierlich und viele Familien mit Kindern ziehen zu, für die wir im TV Hilpoltstein von Anfang an Bewegungsangebote schaffen wollen.
Impressionen
Bilder: Architekturbüro Wenzel
Die Fakten
- Hilpoltstein wächst kontinuierlich
- Unsere Bevölkerung wird immer älter und viele von ihnen besuchen unsere Sport-, Gymnastik– und Reha-Sportangebote
- Unsere Gesellschaft will fit und gesund älter werden, Lebensqualität erhalten
- Männer und Frauen in allen Altersstufen wollen etwas für die Gesundheit, die Fitness und das Wohlbefinden tun
- Bereits für Kleinkinder, die spielen und toben wollen, wollen wir im Eltern-Kind-Bereich eine motorische Grundausbildung anbieten
- Sport kann nicht immer nur am Abend stattfinden, es müssen auch Angebote am Vormittag, in den Ferien oder zu anderen Tageszeiten stattfinden (z. B. für Ältere, die nicht mehr berufstätig sind)
- Die Turnhalle an der Realschule, die von uns intensiv genutzt wird, ist stark sanierungsbedürftig und nicht mehr zeitgemäß. Dafür brauchen wir dringend Ersatz.
- Die Sanitäreinrichtungen und Gesellschaftsräume am Tennisgelände sind in die Jahre gekommen und entsprechen nicht mehr den aktuellen Anforderungen.
Wichtig ist dabei aber auch die Barrierefreiheit und das Ambiente in einer Sporthalle. Gesundheitssport- und Reha-Sportangebote in einem Hallen-Drittel mit schlechter Akustik und grellem Licht, daneben eine Ballsportgruppe – das ist in der Regel für viele unserer Gesundheitssport-Angebote nicht zielführend und bietet keine Wohlfühlatmosphäre. In unserer neuen Halle wird das anders sein!
Unser neues TV-Gebäude am Tennisgelände – ein Solidarprojekt
Wir haben uns bewusst für den freien Platz am Tennisgelände entschieden. Zum einen sind wir Eigentümer des Grundstücks, zum anderen können wir für einen Großteil unserer Mitglieder optimale Bedingungen schaffen. Natürlich wird diese Halle hauptsächlich von der Turn- und der Tennisabteilung genutzt, in Addition machen diese Abteilungen doch mehr als die Hälfte unserer Mitglieder aus. Zudem kann unsere Halle auch sehr gut von anderen Gruppen/Abteilungen genutzt werden: Tanz, Kampfsportarten wie Ju-Jutsu und Taekwondo, Tischtennis, Reha-Sport, Feriencamps und Ferienangebote.
Die jetzt von uns angemietete alte Realschulturnhalle ist in die Jahre gekommen und wird für den Schulsport nicht mehr genutzt. Wir sind dankbar dafür, dass wir sie vom Landkreis anmieten konnten, aber wir müssen alle Reparaturen selbst bezahlen. Die Duschen können nicht mehr benutzt werden und die Heizkosten sind enorm. Energetisch gesehen eigentlich nicht mehr verantwortbar. Zudem haben wir eine Kündigungsfrist von 3 Monaten. Eine kurzfristige Kündigung – aus welchen Gründen auch immer – würde uns vor erhebliche Probleme stellen. 35 Sportangebote pro Woche wären heimatlos, davon 22 für ältere Erwachsene. Zudem unsere Ferien-Camps und fast das komplette Ferientraining. Alle diese Gruppen müssten auf die verbleibenden Hallen aufgeteilt werden und dies würde alle Abteilungen des TV Hilpoltstein einschränken. Also musste Ersatz her.
Mit der neuen Halle und dem damit verbundenen zeitgemäßen Ambiente können wir unser Angebot weiter wie gewohnt durchführen und evtl. auch ausweiten mit Seminaren/Workshops und qualifizierten Kinderkursen (bewegtes Lernen, Koordinationstraining …)
Wichtiger finanzieller Aspekt: Das Sonderförderung für strukturschwache Kommunen des Freistaats Bayern. Im Rahmen dieser Sonderförderung erhalten wir vom BLSV 45 % Zuschuss zu den förderfähigen Baukosten und ein zinsgünstiges Darlehen in Höhe von 20 %. Bei Baukosten von ca. 3,5 Mio Euro ein entscheidender Faktor.
Darüber hinaus haben wir die Synergien bezüglich eines Neubaus des Tennisheims genutzt und für alle Generationen eine Stätte der sportlichen und gesellschaftlichen Begegnung mit Spielplatz für unsere Kleinsten geschaffen.
Die Kosten werden sich mitsamt Parkplatzneustrukturierung und Zufahrt auf ca. 3,5 Mio Euro belaufen. Die Zuschüsse betragen ca. 2 Mio Euro und der TV Hilpoltstein und alle seine Abteilungen bringen 750.000 € an Eigenmitteln ein. Finanziert werden müssen somit noch ca. 750.000 Euro und der TV HIP hofft hier auf Unterstützung von Sponsoren und Bürger Hilpoltsteins und Umgebung.
Alle Spenden können steuerlich geltend gemacht werden. Eine weitere Möglichkeit sind zinslose Darlehen für 2 Jahre zugunsten des TV Hilpoltstein mit einem verbindlichen Rückzahlungstermin.
Bislang sind rund 270.000 Euro an Spenden und Sponsorengeldern eingegangen.
Wir sind stolz auf dieses Gemeinwohl-Projekt, an dem sich viele Menschen in und um Hilpoltstein beteiligt haben – sei es ideell oder finanziell.
Möchten Sie uns unterstützen?
Durch Ihre Spende unterstützen Sie unser ambitioniertes Neubauprojekt in Hilpoltstein. Egal, welchen Betrag Sie spenden, jede Spende ist hilfreich. Sie können auch gerne eine Zweckbindung mit angeben: Außenanlagen, Geräteausstattung, Inneneinrichtung, Kinderspielplatz, Parkplätze usw.
Wenn Sie eine Spendenquittung benötigen, wenden Sie sich bitte per Mail an info@tv-hip.de.
Speziell für Unternehmen haben wir verschiedene Sponsorenpakete, die flexibel gestaltet werden können. Sprechen Sie uns gerne an.
Spendenkonto
Spendenkonto Haus für Bewegung und Begegnung
Raiffeisen – meine Bank
IBAN DE71 7606 9449 0208 9750 00
BIC GENODEF1FYS
Spende über Paypal
Archiv
Die Klingele Paper & Packaging Group hat für uns Unterstützerboxen angefertigt. Werksleiter Bernhard Harrer hat die Boxen im Rahmen unseres Familien-Sportfestes an den Schatzmeister Ralph Schmidtkunz und die Vorsitzende Elke Stöhr übergeben. Somit besteht nun die Möglichkeit, zugunsten unseres Neubauprojekts unter dem Motto „Spenden statt Schenken“ Spenden zu sammeln. Habt Ihr einen runden Geburtstag, eine Hochzeit, ein anderes Fest? Lasst euch Spenden schenken! Wir stellen euch die entsprechenden Boxen zur Verfügung – eine kurze Info an vorstand1@tv-hip.de genügt.
Hier wird unser Bautagebuch entstehen.
Januar 2023 Baumrodungsarbeiten am Tennisgelände
Veranstaltungen
Mit der Fa. Salbaum CNC haben wir einen Namensgeber für unsere neue Halle gefunden. Wir bedanken uns ganz herzlich für das Vertrauen und freuen uns auf ein gewinnbringendes Miteinander.
Rudi Gaukler spendete 1.000 € zugunsten der neuen Halle mit den Worten: „Ich bin der Meinung, dass dieses Projekt zukunftsweisend und wichtig für den TV Hilpoltstein ist. Für meine Zukunft im TV sowie viele Gleichgesinnte und vor allen Dingen für unsere Jugend im TV Hip und der Stadt. Wer es sich finanziell leisten kann, sollte dies auch tun. Jede Spende zählt und ist wichtig.“
Trödelaktion zugunsten dem neuen Haus für Bewegung und Begegnung bringt 1155 Euro
Initiiert und durchgeführt durch die Senioren im TV Hilpoltstein gab es am Burgfest-Trödelmarkt einen Trödelstand. 20 Mitglieder spendeten großzügig sehr viele Waren. „Wir wollen auch einen Beitrag zum Hallenbau liefern“, meint die Seniorenreferentin Fanny Seitz. Unterstützt durch die Turnabteilung gab es für junge Trödelmarktbesucher Tattoos. 13 Helfer und Helferinnen kümmerten sich um den Stand und den Verkauf. Letzte Woche fand die Übergabe des Erlöses in Höhe von 1.155 Euro statt. Insgesamt war es eine tolle Aktion, die durch einen Garagenflohmarkt am 7. Oktober in der Sonnenstraße 3b eine Fortsetzung findet.
Unter der Regie der Tischtennisabteilung des TV Hilpoltstein fand Mitte Juli ein Ping Open statt. Eine tolle Abendveranstaltung mit Tischtennis-Rundlauf, kühlen Getränken und vielen Hobby-Tischtennis-Spielern. Die DJ´s Mun-Go Waldner, Benny Toll, Feel-x BigHammer und Ulrich Vinyl sorgten für eine launige Atmosphäre. Uli Eckert, der das Event federführend organisiert hat, konnte nun 705 Euro Überschuss zugunsten des Neubaus an die Vereinsvorsitzende übergeben.
Wir bitten um Unterstützung
29.06.2023 – Einstimmiger Beschluss der Mitgliederversammlung zur Umsetzung des Bauvorhabens aufgrund der vorliegenden Planung. Vielen Dank an alle Besucher und Befürworter. Hier ein ausführlicher Bericht.
Einladung zur Außerordentlichen Mitgliederversammlung
29. Juni 2023 um 19 Uhr
Hofmeierhaus













